28 Ottobre 2022 |     
 
HOME
   
STUDIO
   
PROGETTI
   
CONTATTI
 

casa unifamiliare in area agricola - limena.pd

L’edificio sorge in ambito agricolo contornato da terreno coltivato, quasi totalmente, a seminativo.

Il riferimento tipologico progettuale è l’abitazione rurale, per indicazione normativa e per scelta della committenza. Tenuto conto degli stili abitativi attuali, il progetto ha inteso lavorare sul tema dell’estrema commistione di elementi eterogenei che compongono l’immaginario del rurale, sulla stratificazione di interventi diversi che costituiscono la patina storica degli edifici rurali, chiamati a rispondere alle esigenze contingenti delle famigli che vi abitavano.

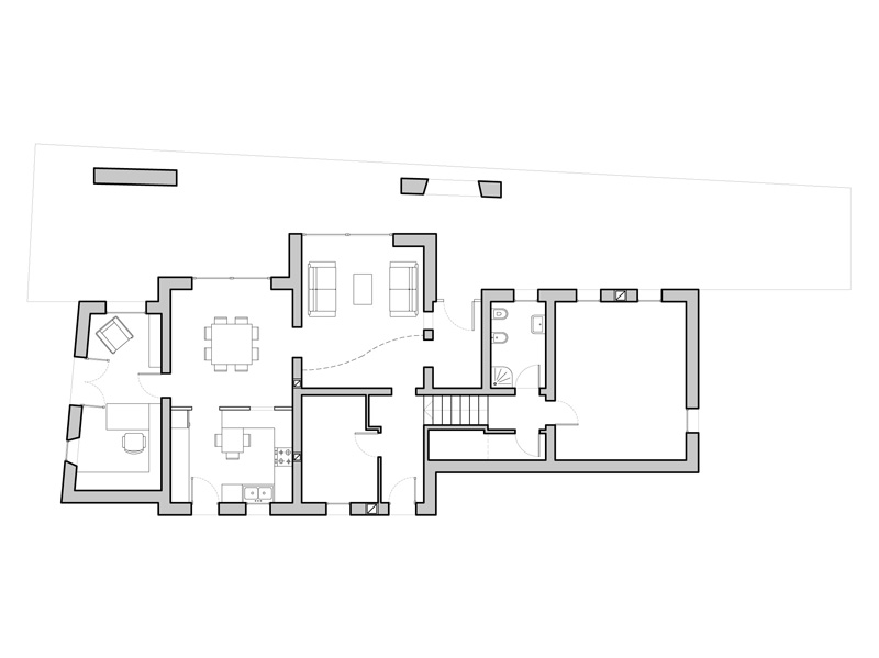
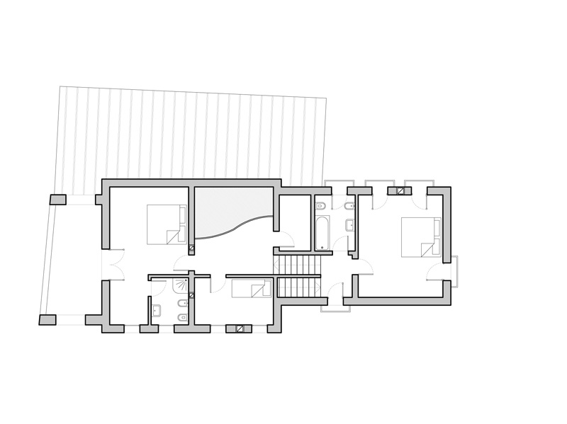
Il progetto prevede un corpo centrale, cui si accorpano, quasi a simulare la stratificazione storica sopradetta, tre parti minori: un corpo ribassato e seminterrato verso strada, un corpo terrazzato verso la campagna aperta, a sud, un porticato a ovest, a proteggere le grandi aperture della facciata principale. Il corpo principale, costituito da un parallelepipedo a base rettangolare, è caratterizzato da uno spazio a doppia altezza sul quale sono affacciati gli ambienti principali della casa, compreso l’aggetto di distribuzione alla zona notte. Il portico, con tetto il legno in parte aggettante, si dispone secondo una geometria divergente rispetto al resto dell’edificio e fa ruotare verso la campagna lo spazio sul quale affacciano, con grandi aperture, gli ambienti principali della cucina e del soggiorno. Esso costituisce un diaframma di mediazione tra lo spazio esterno e quello interno e viene evidenziato e schermato da due setti murari rivestiti con materiali lapidei.



piano terra

primo piano