28 Ottobre 2022 |     
 
HOME
   
STUDIO
   
PROGETTI
   
CONTATTI
 

magazzino artigianale e uffici - limena.PD

L'attenzione progettuale si è rivolta principalmente alla costruzione di uno spazio a doppia altezza, vetrato, in corrispondenza dell'ingresso agli uffici.
La scala a vista è stata costruita in carpenteria metallica utilizzando materiali di scarto delle lavorazioni artigianali che si svolgono all'interno dell'azienda, prevalentemente costituita da tubolari metallici.



scala

pontile


pontile

dettaglio pontile


uffici

dettaglio scala


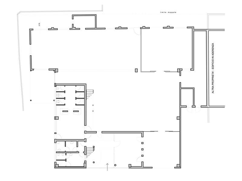
piano terra

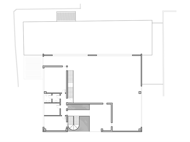
primo piano uffici