28 Ottobre 2022 |     
 
HOME
   
STUDIO
   
PROGETTI
   
CONTATTI
 

progetto di allestimento sala teatro Falcone - Borsellino

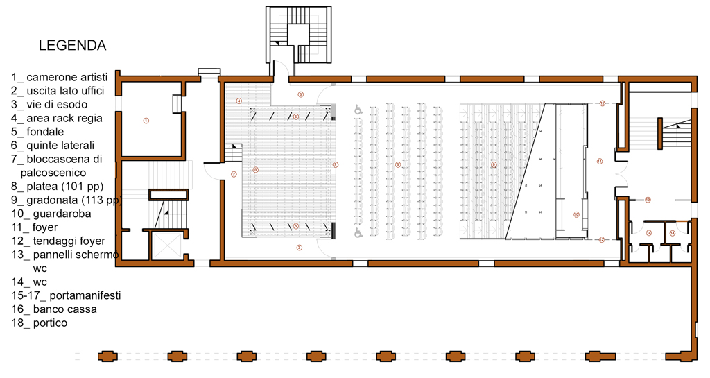
Le esigenze tecnologiche di una sala teatrale polifunzionale, la strutturazione di un palcoscenico, la necessità di ottenere un sufficiente livello di confort visivo e sonoro per gli utenti, la limitata altezza utile sotto la catena della capriata lignea, costituiscono un insieme di elementi progettuali e di obiettivi che hanno portato alla soluzione proposta, che prevede la realizzazione di un palcoscenico rialzato di soli 80 cm dal pavimento e la messa in opera di una gradonata per il pubblico, appoggiata, come un mobile, sul pavimento.
L’ingresso alla Sala, al primo livello, avverrà dal piccolo foyer ricavato sotto la gradonata, dove è posizionato anche il guardaroba, attraverso i due passaggi laterali che conducono allo spazio della rappresentazione vero e proprio, dando gradualità e spessore alla percezione complessiva dell’ambiente architettonico.











Il palcoscenico è stato attrezzato per spettacoli teatrali, musicali, conferenze e convegni, staccandosi dai muri perimetrali per consentire l’esodo lungo le vie di fuga sui due lati e sul retro del palcoscenico stesso. Due paraste laterali, apribili, consentono di isolare visivamente il retro del palco dagli spettatori qualora le esigenze dello spettacolo o dell’evento lo richiedessero. Palcoscenico e gradonata sono realizzati in elementi portanti metallici e rivestimenti lignei.
L’allestimento complessivo si sviluppa attorno al tema del cambiamento di funzione del granaio della Barchessa, attorno alla metafora di una fabbrica agricola che diventa fabbrica di eventi, di parole e di suoni. L’impiego di materiali quali ferro, legno, corde e teli in tessuto grezzo, pur manifestando il suo carattere di provvisorietà e reversibilità, sottolinea il legame dei nuovi oggetti con la storia dell’edificio, del suo essere, in quanto villa veneziana, formidabile avamposto agricolo posto tra Brenta e Brentella.


articolazione spaziale e funzionale


pianta livello platea


pianta livello gradonata


sezione


dettaglio