28 Ottobre 2022 |     
 
HOME
   
STUDIO
   
PROGETTI
   
CONTATTI
 

casa unifamiliare in lottizzazione - limena.PD

La progettazione dell’edificio unifamiliare prevede un doppio ingresso pedonale, dalla strada e dalla zona verde, articolato da spazi all’aperto, portici e frangisole, disposti lungo l’intero perimetro. Al Piano Terra, oltre al garage, si trova la zona giorno, costituita da un grande ambiente soggiorno-pranzo, affacciato su due portici, est ed ovest, e aperto a sud sul giardino. Questa apertura è protetta dall’irraggiamento solare estivo da una struttura leggera frangisole. La cucina, adiacente al soggiorno-pranzo, affaccia sul portico est da un lato e su una piccola corte interna dall’altro. Sulla medesima corte affaccia uno studio. Completa il piano terra una zona servizi, costituita dalla lavanderia e da un bagno. Gli ambienti sono collegati da un corridoio-disimpegno che distribuisce anche al vano scala e al garage .

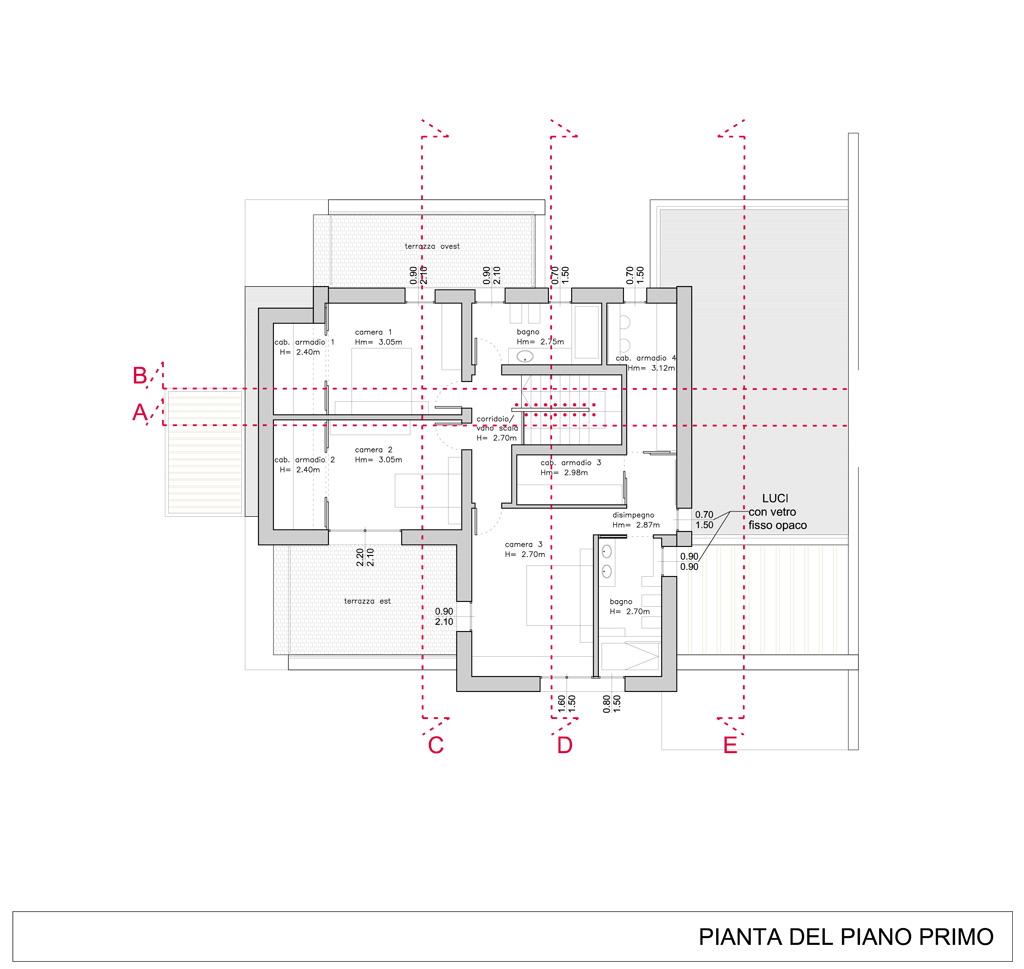
Al Primo Piano si trovano le stanze da letto, tutte dotate di proprie cabine armadio, e i servizi igienici; ogni camera è dotata di accesso alle  terrazze aperte ad est o ad ovest.

La disposizione planimetrica dell’alloggio, le aperture trasparenti, i portici e i frangisole sono collocati in modo da poter godere dei benefici dell’irraggiamento solare estivo ed invernale sfruttando l’ aerazione e l’illuminazione naturale.











l'edificio realizzato