28 Ottobre 2022 |     
 
HOME
   
STUDIO
   
PROGETTI
   
CONTATTI
 

ristrutturazione casa sub urbana - padova

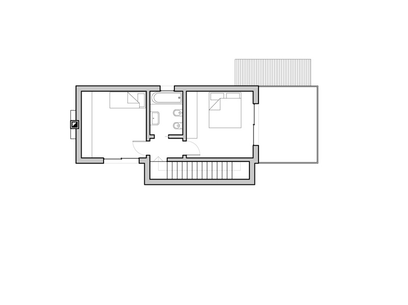
Il progetto riguarda il recupero di un edificio di civile abitazione, di ridotte dimensioni in pianta (m. 10,25 x m. 4,35), sviluppato su due piano fuori terra, probabilmente costruito nell’immediato dopoguerra e caratterizzato da un impianto originario di estrema semplicità, costruito con materiali “poveri”, con ingresso e vano scala baricentrici rispetto al lato lungo fronte sud e due stanze laterali.

Risultano leggibili gli interventi realizzati in epoca successiva e caratterizzati da “aggiunte” rese via via necessarie dalle mutate esigenze abitative, ai lati nord, est, oltre all’autorimessa staccata costruita in lamiera.

Il progetto ripropone il mantenimento delle “aggiunte”, evitando di mascherarle o mimetizzarle, ma tentando di dare loro un ordinata leggibilità, lasciando percepibile la lettura della volumetria originaria dell’edificio.

La modifica alle dimensioni ed alla tipologia dei fori accoglie la volontà dei proprietari di “aprire” alla luce e favorire il rapporto con l’esterno, vista la presenza di terreno coltivato nel proprio intorno e l’inedificabilità della fascia di rispetto autostradale al lato sud ove trova collocazione un piccolo ampliamento, ulteriore stratificazione volumetrica “aggiunta”, vetrata e schermata in parte, nella quale verrà collocata la nuova scala.



prima

dopo


piano terra

primo piano


progetto fronte sud

vista nord est


demolizione partizioni interne

l'interno svuotato